_HOCH 178 SD
Komfortables Einfamilien-Energiesparhaus mit viel Platz für die ganze Familie
Clever geplant, mit Platz für alle Fälle!
Viel Platz für die ganze Familie, durchdachte Grundrisse und moderne Architektur machen das HOCH Massivhaus 178 SD zu einem unserer beliebtesten Entwürfe.
Der zusätzliche Giebel, der wahlweise auf der Vorder- oder Rückseite geplant werden kann, verleiht Ihrem neuen Eigenheim eine besonders attraktive Struktur und bietet Platz für ein weiteres Schlaf- oder Arbeitszimmer. So sind Sie auf alles, was vielleicht noch kommt, bestens vorbereitet.
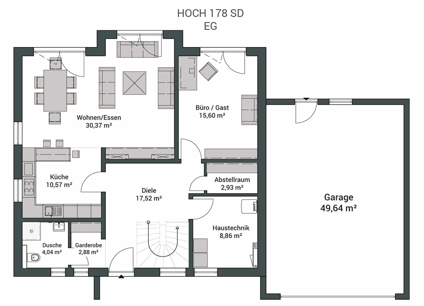
HOCH 178 SD
Erdgeschoss ca. 92,77 m²
Obergeschoss
ca. 92,77 m²
Nettogrundfläche*
ca. 178,00 m²
Satteldach 30°
- Architektenleistung
- Bauleitung
- Vermessung
- Bodenplatte
- Fenster mit 3-fach Verglasung
- Rollläden
- Luft-Wärmepumpe
- Fußbodenheizung
- Massivholztreppe in Buche
- Hochwertige Innentüren
- Braas Tondachziegel
- Böden Fliesen u. Laminat
- ...und vieles mehr
* nach DIN 277
Individuelle Grundrissplanung
Für Sie versetzen wir Wände! Lieber ein offener Koch-Essbereich oder doch lieber eine größere Küche und separates Esszimmer? Wir planen Ihren Grundriss individuell und ganz nach Ihren Wünschen. Ohne zusätzliche Kosten!
Das HOCH Bemusterungszentrum - Damit auch alles stimmt. Bis ins Detail!
Ob Bodenbeläge, Fenster, Türen, Treppen, Dachpfannen oder Fassadenputze! In unserem Bemusterungszentrum werden Sie, zu jedem Quadratmeter Ihres neuen Eigenheimes, perfekt und exklusiv beraten. Ob aktuelle Trends oder zeitloses Design – hier werden Sie fündig.
Ob Bodenbeläge, Fenster, Türen, Treppen, Dachpfannen oder Fassadenputze! In unserem Bemusterungszentrum werden Sie, zu jedem Quadratmeter Ihres neuen Eigenheimes, perfekt und exklusiv beraten. Ob aktuelle Trends oder zeitloses Design – hier werden Sie fündig.
Sie möchten Bauen? Bei einer Tasse Kaffee oder Tee sprechen wir in Ruhe über Ihre Pläne.





